Ultima – это комплектное устройство с твердотельной изоляцией, предназначенное для приема и распределения электрической энергии в сетях с изолированной нейтралью номинальным напряжением 6-10кВ.
Данный тип ячеек находит широкое применение в промышленном секторе, жилищно-коммунальном строительстве и агропромышленном комплексе.
Ячейки Ultima вобрали в себя надёжность, простоту и безопасность, подтверждённые испытаниями в научно-техническом центре федеральной сетевой компании.
В типовой линейке Ultima имеются следующие варианты ячеек:
- Ячейка с силовым выключателем;
- Ячейка с выключателем нагрузки;
- Ячейка с заземлением сборных шин;
- Ячейка с трансформаторами собственных нужд;
- Ячейка силового выключателя нагрузки в комплекте с трансформаторами напряжения.
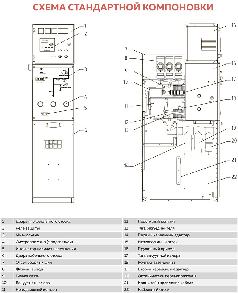
Конструктивные решения
Конструкция ячейки Ultima предусматривает разделение на 4 отсека с помощью металлических перегородок.
Вакуумные камеры и заземляющие ножи каждой фазы отделены друг от друга твердотельной изоляцией, каждая фаза представляет отдельный блок.
Силовые выключатели, применяемые в ячейках, не требуют обслуживания и при номинальных режимах способны на 10 000 коммутаций.
Коммутационные аппараты оснащены надежным пружинно-моторным приводом.
Отсек привода, расположенный с фасадной части ячейки. Включает в себя механизмы управления силовым выключателем и заземляющим разъединителем, а также моторы, дополнительные контакты и внешние устройства сигнализации.
Ширина ячейки 420…490 мм (в зависимости от номинального тока) и фронтальное подключение кабеля, позволяют установить Ultima в ограниченное пространство.
|
Номинальное напряжение (кВ)
|
6, 10 |
|
Номинальный ток (А)
|
630, 1250 |
|
Номинальная частота (Гц)
|
50 |
|
Испытательное напряжение 1 мин. (кВ)
|
32, 42 |
|
Выдерживаемое напряжение ПГИ (кВ)
|
60, 75 |
|
Номинальный ток отключения при КЗ (кА)
|
для 630А - 25; для 1250А - 31,5 |
|
Ток термической стойкости (кА)
|
для 630А - 25; для 1250А - 31,5 |
|
Время протекания тока КЗ (с)
|
3 |
|
Ток электродинамической стойкости (кА)
|
для 630А - 51,63; для 1250А - 80 |
|
Уровень частичных разрядов (пкКл)
|
≤20 |
|
Степень защиты оболочки/силовых цепей
|
IP4X/IP67 |
|
Сопротивление основной цепи (мкОм)
|
≤150 |
|
Механический ресурс (циклов ВО) выключатель силовой / выключатель нагрузки / разъединитель
|
10000/5000/3000 |
|
Время включения, не более (мс)
|
40 |
|
Время отключения, не более (мс)
|
35 |
|
Сейсмостойкость (баллов)
|
9 |
